Makléř: Kovalik Martin
Telefon: 607 256 ...
E-mail: kovalik ...
Zobrazit celý kontaktTelefon: 607 256 046
E-mail: kovalik@voytareality.cz
Nemovitost nabízí
VOYTA reality s.r.o.
Mrázova 845/9, 412 01 Litoměřice
Zobrazit kontakt na RK777 316 240
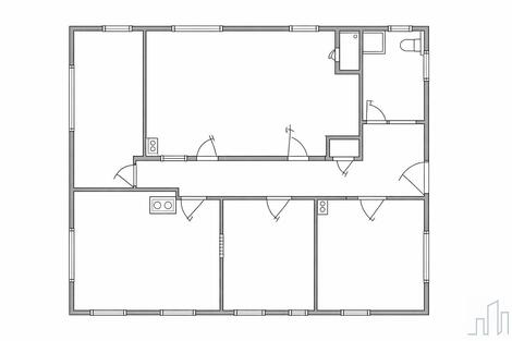
Nabízíme k prodeji výjimečný byt s atmosférou v jedné z nejkouzelnějších částí Litvínov na Osadě, v ulici Jedličkova 1156. Tato vyhledávaná lokalita si dodnes zachovává svůj původní ráz a jedinečný genius loci. Klid, zeleň, blízkost lesa i zahrádkářské kolonie - místo, kde se bydlí s radostí a kde má domov skutečnou duši. Byt se nachází ve 2. nadzemním podlaží dvoupodlažního domu a nabízí nadstandardní prostor, který dnes jen tak nenajdete. Původní dispozice 5+1 (cca 100 m) byla citlivě upravena na velkorysých 4+1, čímž vznikl ještě vzdušnější a komfortnější obytný prostor. Dům je ve velmi dobrém stavu v loňském roce byla kompletně rekonstruována střecha, před deseti lety proběhlo zateplení a výměna oken za plastová. K bytu náleží dvě sklepní kóje, podíl na společných sklepních prostorách a udržovaná zahrada o velikosti cca 500 m, která nabízí příjemné místo k posezení či relaxaci. Samotný byt je v původním, avšak velmi zachovalém stavu. Působí čistě, svěže a vzdušně. Dispozice je řešena prostornou centrální chodbou, která prochází středem bytu. Na jedné straně se nacházejí tři velké pokoje (dva z nich jsou průchozí), obývací pokoj zůstal v původním stavu, ostatní místnosti jsou vyklizené a čerstvě vymalované. Další samostatný pokoj o velikosti cca 13 m je umístěn v zadní části bytu. Kuchyně byla otevřena do původní jídelny, čímž vznikl příjemný a prostorný kuchyňský kout s dostatkem místa pro rodinné setkávání. Koupelna s WC je situována u vstupu do bytu. Vytápění je řešeno plynovými topidly (Gamaty), ohřev vody zajišťuje karma plynové vytápění přináší kontrolu nad náklady i nezávislost. Tento byt je ideální pro někoho, kdo hledá víc než jen další nemovitost. Pro někoho, kdo ocení prostor, klid, charakter domu a atmosféru místa. Nabízí velkorysé možnosti úprav podle vlastních představ a zároveň už teď poskytuje příjemné a klidné bydlení, které nelze srovnávat s anonymitou panelových domů. Pokud hledáte byt s duší, který nabízí nadstandardní prostor v jedinečné lokalitě, právě jste ho našli. <a href="https://www.eurobydleni.cz/byty/2_kk/kladno/obec-kladno/pronajem/"><strong>Pronájem bytu 2+kk Kladno</strong></a>
Prodej bytu 4+1, 82 m2, Litvínov
Prodej bytu 4+1 o užitné ploše 82 m2 v 7. NP panelového domu (7 nadzemních podlaží) na sídlišti v části Janov u Litvínova. Rekonstrukce proběhla před…
Prodej, byt 4+1, DV, Litvínov - Janov, ul. Hamerská
Nemovitosti SEVER vám zprostředkují koupi bytu s dispozicí 4+1 s lodžií v družstevním vlastnictví v Litvínově, části Janov v ul. Hamerská. Byt s…
Prodej bytu 4+1 Litvínov na Eurobydleni.cz