Aktuálně můžete v lokalitě Ústí nad Labem vybírat z nabídky 126 bytů.
Přehled nemovitostí: prodej byty > atypické byty Zpět na přehled nabídek

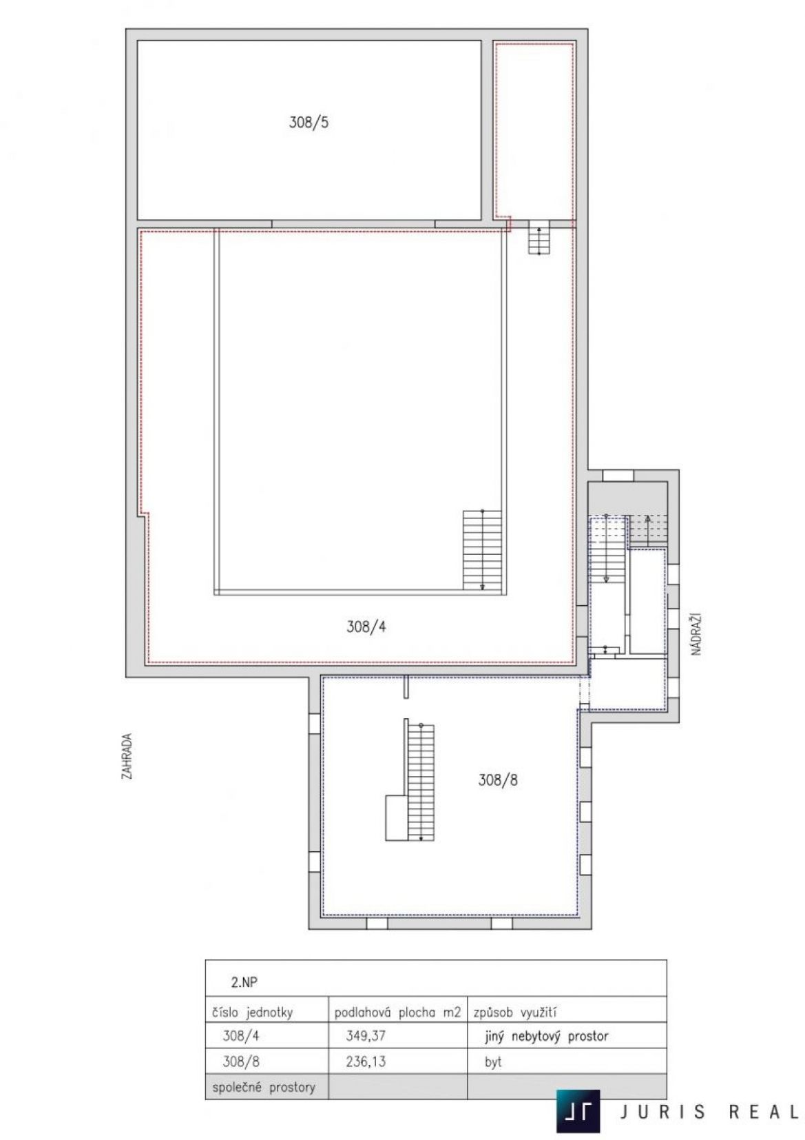
Prodej bytu 246 m2 - Dolní Podluží

neuvedeno

neuvedeno

osobní

G - Mimořádně nehospodárná

100957

Cena: 900000 CZK / objekt
Poznámka k ceně: včetně provize, včetně právního servisu, cena k jednání 1

Poslat dotaz k nabídce
Zásady používání osobních údajů

Prodejce

Makléř: Martin Vlček

Telefon: 601 587 ...

E-mail: vlcek@j ...

Zobrazit celý kontakt

Nemovitost nabízí

JURIS REAL, spol. s r.o.

Šrobárova 2100/49, Praha 3

www.jrdrazby.cz

Zobrazit kontakt na RK

Zobrazit všechny nabídky RK

Nabízíme k prodeji atypickou jednotku o výměře 246 m2. Jednotka se nachází v několika podlažích a je vhodná pro vestavbu několika bytových jednotek(3-5 bytů). Jde vyloženě o hrubou stavbu, vše je potřeba vybudovat. Objekt je napojen na vodovod a kanalizaci, v ulici se nachází i přípojka plynu. V areálu je možné přikoupit skladovací prostory, restauraci, kanceláře, sklep nebo garáž. Zajistíme financování, nákup možný i na splátky. Cena k jednání. Je možná také výměna za jinou nemovitost. <a href="https://www.eurobydleni.cz/domy/rodinny-dum/jindrichuv-hradec/obec-straz-nad-nezarkou/prodej/"><strong>Prodej rodinného domu Stráž nad Nežárkou</strong></a>




Prodej atypický/jiný Dolní Podluží na Eurobydleni.cz


Nahoru